г. Москва
+7 (916) 602 93 70
Дизайн-студия Натальи Гришаенковой
Авторский дизайн интерьера.
Проектирование частных домов.

Проектирование загородных домов и коттеджей

Мир вокруг нас стремительно меняется... Только не меняется наш дом, его суть...
Он по-прежнему остается местом, которое дает нам укрытие, вселяет покой в душу...
Наш островок постоянства и душевного комфорта... Там, где мы можем быть сами собой...

Проектирование загородных домов и коттеджей для меня особое удовольствие,
потому что с самого начала можно сделать дом с хорошими и удобными для жизни планировками
и правильным расположением на участке...
В моем портфолио уже есть несколько домов, которые были построены в Подмосковье по моим проектам.
А сейчас еще один гостевой дом с баней строится на Тамани...
проектирование загородных домов
Работая над оформлением интерьера загородных домов
моих заказчиков,
мне практически всегда приходилось делать перепланировки домов и менять назначение помещений,
чтобы сделать их жизнь более удобной и комфортной...
Декорировать помещения  с плохой архитектурой,
когда мебель не встает на нужные места,
а сама планировка состоит из сплошного хаоса -
трудная задача...
Поэтому, мечтая о создании домашего очага,
очень важно найти архитектора для проектирования загородного дома и дизайнера,
которые помогут пройти весь путь от красивой мечты до ее воплощения в виде уютного и комфортного жилища...

Авторский проект загородного дома

Моим заказчикам был нужен проект большого загородного дома в Подмосковье
для отдыха на природе всей семьей...

Индивидуальное проектирование загородных домов очень увлекательное занятие...
Важно понять, какой именно дом хотят заказчики, и предложить им единственно правильный вариант,
который станет их уютным семейным очагом со скрепами и котиками, и где они будут счастливы долгие годы... :-)
проектирование загородных домов
Создание проекта этого загородного дома началось с моих впечатлений от поездки по Америке...
Однажды в предгорьях Аппалачей я попала в небольшую коммуну с весьма колоритными домами.
Вдохновившись увиденным, я придумала вот такой большой и красивый загородный дом с характером...
Дома шале в Америке
загородный дом в стиле шале
дом шале с гаражом
проектирование загородных домов под ключ
Проект загородного дома
с цокольным этажом - 530 кв.м.
без цокольного этажа - 350 кв.м.

Индивидуальное проектирование
загородных домов имеет ряд преимуществ
перед типовыми проектами:
планировка дома и размеры помещений
полностью учитывают потребности заказчиков.
Немаловажно и правильное расположение дома
на участке по сторонам света
для лучшей освещенности...

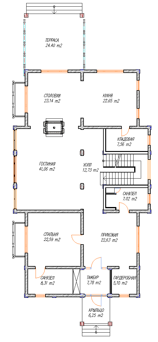
Через обязательный в нашем климате тамбур
попадаешь в большую прихожую.
Гардеробная выделена в отдельное помещение.

На 1-м этаже дома находятся
большие гостиная, столовая и кухня.
Рядом с кухней располагается кладовая,
где можно хранить кастрюли
и фамильное серебро... :-)

Спальню с отдельным санузлом
можно использовать и как кабинет,

На 1-м этаже располагаются 2 санузла.

В спальне и столовой есть выходы
на небольшие балконы,
чтобы созерцать окрестности...

Окна большой кухни ориентированы на восток,
поэтому утренний кофе будет всегда
сопровождаться солнцем,
если оно, конечно, предусмотрено
в метеорологическом прогнозе...

Окна гостиной и столовой смотрят на юг...
В нашем унылом климате это имеет
большое значение...

А еще я придумала бельепровод,
чтобы не носить постельное белье
со 2-го этажа в постирочную
в цокольном этаже.
Нужно просто закинуть постельное белье
в специальную трубу,
и оно приземлится точно
возле стиральной машины...
Индивидуальное проектирование загородных домов предусматривает различные варианты отделки фасада...

Мои заказчики хотели дом из клееного бруса, а клееный брус можно красить...
Поэтому, при помощи правильной покраски брутальный американский дом превращается...
дом превращается... :-)
практически в русскую усадьбу...
проектирование загородных домов и коттеджей
индивидуальное проектирование загородных домов
Дом из клееного бруса планируется привезти из Финляндии...
Финны прислали нам с завода образец клееного бруса толщиной 40 см...

Именно такая толщина рекомендована для наших широт, чтобы в доме не было холодно...
Наши производители могут пока только максимальную толщину 24 см...
проектирование домов из клееного бруса под ключ

Проектирование жилых домов - Ужасы нашего городка...

Моя история с индивидуальным проектированием загородных домов началась с того,
что однажды меня пригласили на предмет дизайна интерьера загородного дома в Валентиновке...
Прекрасное стародачное место... Сосны... Красота...
Общая площадь дома составляла 240 кв. м. или чуть больше...

А теперь нервным и особо впечатлительным просьба удалиться от экрана.
Уберите также беременных и детей... :-)

Что же я увидела?
А увидела я вот такую планировку 1-го этажа, от чего волосы на моей голове встали дыбом...
проектирование загородных домов
Маленькая кухня, она же парадная столовая, что само по себе уже нонсенс...
Уважаемые господа! Если двадцать лет назад мы все перестали быть товарищами и вдруг стали господами,
прекратите, пожалуйста, устраивать едальни на кухне...
Приглашайте своих гостей в столовую...

Но весь ужас состоял еще и в том, что обеденный стол, по замыслу архитектора,
должен был находиться напротив трех дверных проемов...

Помните, как на тему кухонь и столовых уже однажды выразился классик?
Конечно, с тех пор в нашей стране многое изменилось. Но возвращаться к истокам никогда не поздно...
Про главный вход в дом, расположенный где-то сбоку, я вообще промолчу...
А также про гардеробную в гостиной, камин и телевизор, расположенные на стенах противоположных друг другу...

Сначала я очень разозлилась на архитектора, который выдал вот такой шедевр
ни в чем ни повинному заказчику...
Потом я попробовала исправить хотя бы результаты планировки...
Потом я поняла, что это бесполезно: нужно делать новое архитектурное проектирование загородного дома
и перестраивать весь дом... И отказалась от проекта...
Какую бы красоту я там не навела, обеденный стол напротив трех проемов
и гардеробная в гостиной напрочь убьют любой интерьер...
Планировка второго этажа оказалась еще хуже...

Мне было искренне жаль мою потенциальную заказчицу...

А потом, когда у меня появилось еще больше проектов по дизайну интерьера частных домов,
я просто пришла в ужас от качества проектирования загородных домов у нас в Подмосковье...
дом в стиле шале в Подмосковье

Вот дом в Подмосковье,
над дизайном интерьера которого я работала...

Когда я впервые попала на объект,
дом сначала показался мне очень милым и ладным...

Внутренних перегородок еще не было,
и я стала разбираться с чертежами архитектора...
проектирование домов и коттеджей
проектирование жилых загородных домов
Проектирование частных домов начинается с плана расстановки мебели...
И в этом случае дом оказался с планировкой, как я "люблю"... :-)
На 1-м этаже кухня совмещенная со столовой, маленькая гостиная с непонятной расстановкой мебели...
Все, как полагается... :-)
планировка гостиной в частном доме
планировка кухни в частном доме
Маргарита, моя заказчица, сообщила мне, что они с мужем решили отказаться от маленького кабинетика
на первом этаже в пользу гостиной...
"Ну, слава Богу!... Уже лучше...", - подумала я...
А вот камин перенести невозможно, потому что для него уже сделана шахта на втором этаже,
которая, судя по планировке 2-го этажа, располагается ровно за изголовьем хозяйской кровати...
Так весело спать, когда мозг подогревается... :-)
проектирование частных домов
проектирование загородных домов
Чтобы переубедить моих заказчиков убрать столовую из кухни, мне уже не пришлось выступать с трибуны
с пламенной речью и писать воззвание к клиентам,
как это было в моем проекте дизайна интерьера дома шале в Апрелевке...

Михаил Булгаков помог во второй раз :-)
Но, при новом проектировании 1-го этажа загородного дома, встал вопрос размещения столовой зоны в гостиной...
И еще мои заказчики попросили найти место для старинного пианино...
планировка гостиной столовой в частном доме

Проект загородного дома -
это всегда
очень много чертежей...

Я села чертить
новые планировки гостиной,
исходя из того, что камин
будет находиться
именно в том месте,
где его изначально
расположил архитектор...
Я нарисовала 9 различных вариантов планировок гостиной, но каждый раз получалась какая-то убогость...
То диван приходилось располагать у батареи, то люстры не центрировались по осям...
планировка гостиной в доме
планировка гостиной в частном доме
А потом я подумала: "Ну почему какой-то недоучившийся ду...ак при проектировании загородного дома
придумал камин, труба от которого будет проходить через весь дом, и в частности,
за изголовьем кровати в главной спальне, подогревая мозги моим заказчикам...
А я тут мучайся с планировкой...
Не логичнее ли было бы перенести камин на противоположную стенку и вообще убрать дымоход из спальни...
планировка гостиной столовой в частном доме
Как только я об этом подумала, грянул гром..., сверкнула молния...,
а мышка от компьютера сама стала выводить чертеж на экране монитора... :-)

И сразу же все встало на свои места: и камин, и пианино, и диванная группа, и столовая зона, и люстры по центру...

Я выглянула в окно и посмотрела на небо... Господь Бог опять поцеловал меня в макушку...
планировка гостиной в доме
планировка гостиной с камином в загородном доме
Не нужно далеко ходить,
чтобы заказать индивидуальный проект дома.
Я тут... За МКАДом... В Кратово... :-)

интерьер гостиной с камином в загородном доме
План расстановки мебели на 2-м этаже оказался еще большим шедевром, чем на 1-м...
Про дымоход за изголовьем кровати в спальне моих заказчиков я уже упоминала...

Я долго пыталась проникнуться планировкой ванной комнаты...
Вот стою я вся такая прекрасная на розовых каблуках и пытаюсь залезть в ванную,
которая располагается за стенкой с душевой кабиной...
проектирование загородных домов
Продолжение следует...
г. Москва     тел. +7 (916) 602 93 70            mail: info@grishaenkova.ru     n.grishaenkova@gmail.com